Newcombe Estates are delighted to bring to the market this superb two bedroom duplex presented in excellent condition, ideally located in the heart of Ongar Village. 17 Manor Square offers bright, well proportioned accommodation extending over two levels, designed with modern living in mind.
The property benefits from gas fired central heating and triple-glazed windows, ensuring excellent energy efficiency and year-round comfort. The accommodation briefly comprises a welcoming entrance hall, a spacious and light filled living area, and a contemporary kitchen/dining space ideal for both everyday living. Upstairs, there are two generous double bedrooms(one en- suite) and a well appointed main bathroom.
Manor Square is a highly sought after area within walking distance of Ongar Village, with its excellent selection of shops, cafés, schools, and local amenities. The area is superbly serviced by public transport links and offers easy access to the N3/M50, and Blanchardstown Centre.
This property will appeal to first-time buyers, downsizers, and investors alike seeking a stylish, energy efficient home in a prime Dublin 15 location.
Viewing is highly recommended and by appointment only
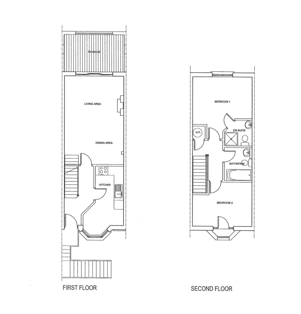
Accommodation
Entrance Hall: with fitted under-stairs storage
Lounge: feature fireplace with slate surround and wooden mantle, gas fire, fitted wall units and sliding patio door to east facing balcony
6.0×3.8m
Kitchen/Dining Room: modern fitted kitchen with wall and floor mounted units, tiled splash-back, oven and gas hob, plumbed for washing
machine and dishwasher
4.2×2.2m
Landing: with laminate wood floor, hotpress and stira access to attic
Bedroom 1: with built-in wardrobes and laminate wood floor
4.4×4.0m
Ensuite: with shower, W.C and W.H.B, hot towel rail, fully tiled walls and tiled floor
Bedroom 2: with built-in wardrobes, laminate wood floor and TV point, patio door to front facing balcony
4.0×3.0m
Bathroom: with large walk-in shower unit, rainfall shower, W.C and W.H.B, storage cabinet, fully tiled walls and tiled floor
Outside
Communal car-parking to front
Large rear balcony with east facing aspect
Front balcony area
Services
Gas Fired Central Heating
Newly fitted triple glazed windows
Annual Service Charge c. €1,400
Local Area Information
Public transport routes that service Ongar:
Bus: 39/39a/139 and Rail: Hansfield Rail Station
Nearby Areas: Ongar Village, Clonee, Clonsilla and Blanchardstown Shopping Centre
